• Portfolio
  • slow
  • expografie
  • the space inbetween
  • begeleid
  • go with the colorflow
  • scherpe vingers
  • barrol
  • cultuurposters
  • berken(s)pel
  • lacune
  • maquettes
wie is lont?
steek de lont maar aan!
Leen Van den Berghen
  • Portfolio
  • slow
  • expografie
  • the space inbetween
  • begeleid
  • go with the colorflow
  • scherpe vingers
  • barrol
  • cultuurposters
  • berken(s)pel
  • lacune
  • maquettes
wie is lont?
steek de lont maar aan!
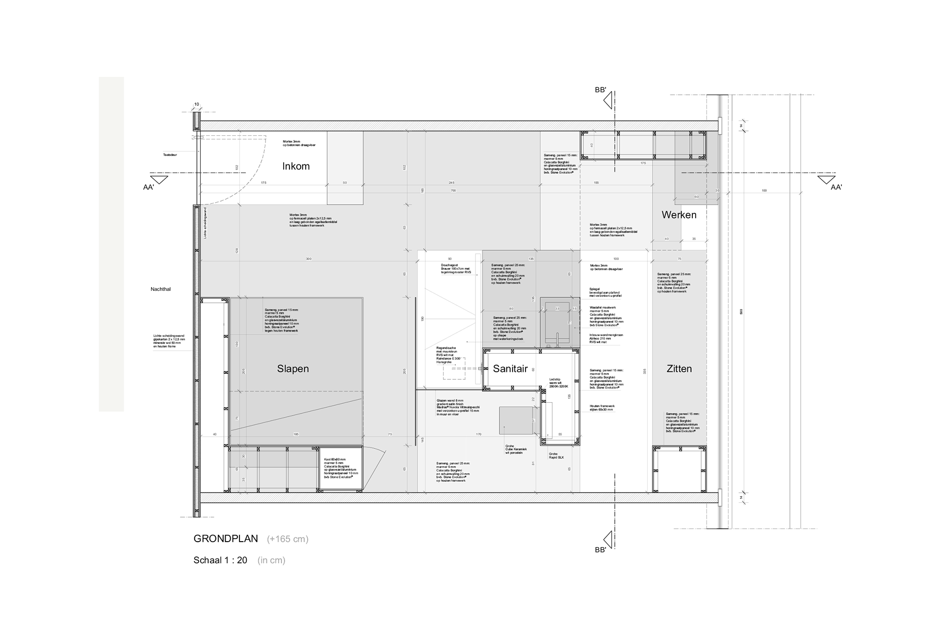
_______lacune TECHNISCHE PLANNEN
lacune
↑Back to Top